1/6

Schmökerei, 

Leoni Haslberger

Schmökerei - Eine Bibliothek für Krün 

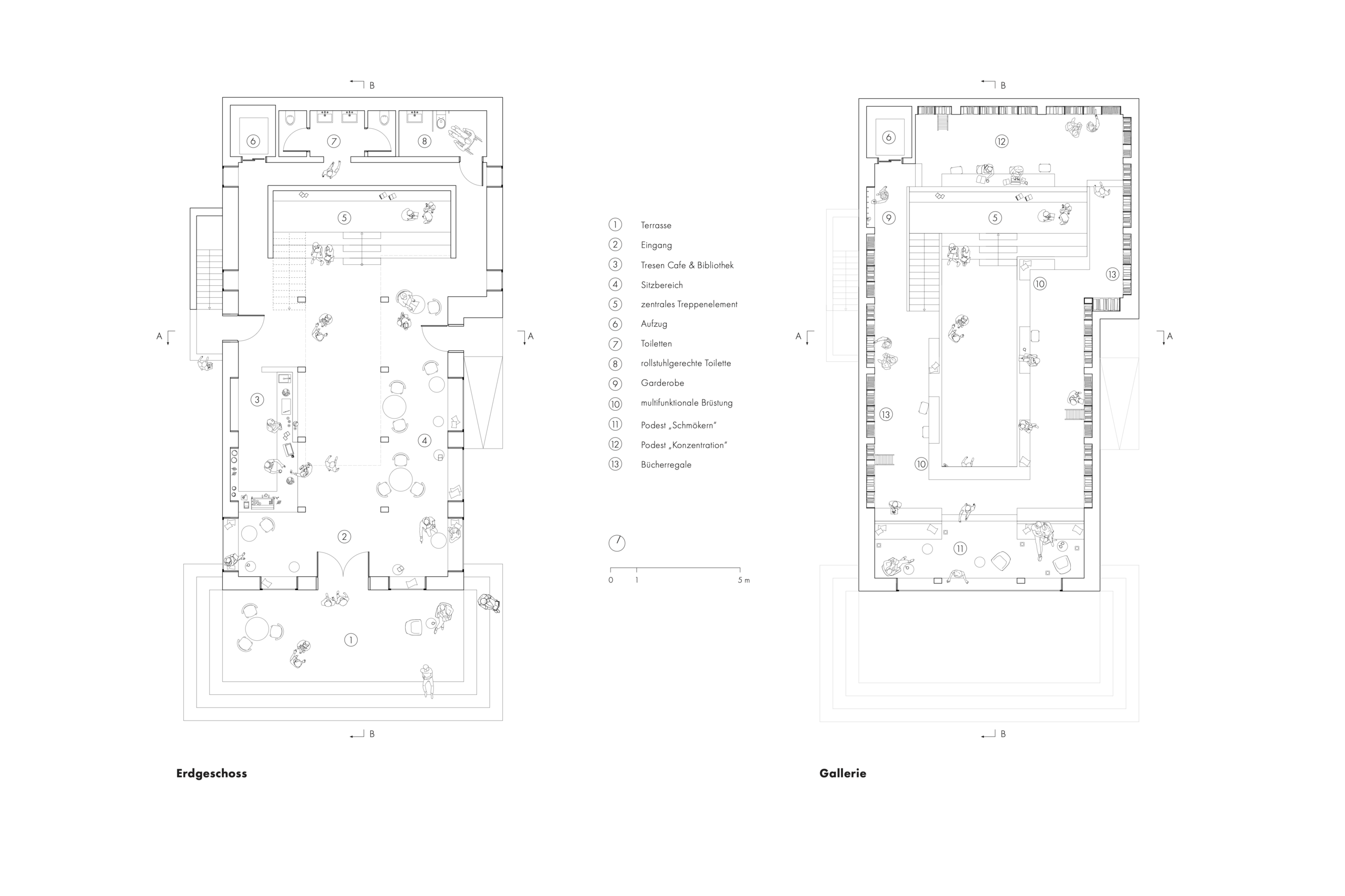
Die Revitalisierung eines Bestandsgebäudes im Herzen der alpenvorländischen Gemeinde Krün zielt darauf ab, die kulturelle und architektonische Identität der Region zu stärken. Das Konzept der Schmökerei vereint eine Bibliothek und ein Café, um sowohl die lokale Bevölkerung als auch den Tourismus anzusprechen. Eine klare horizontale und vertikale Strukturierung des Gebäudes in Kombination mit einer offenen Raumgestaltung ermöglicht eine schnelle und mühelose Orientierung. Das Zusammenspiel funktionaler und ästhetischer Elemente schafft eine inspirierende Umgebung, welche die Neugier weckt und die Besucherlnnen dazu ermutigt, die vielfältigen Nutzungsbereiche des Gebäudes zu erkunden. Die Verwendung dezenter Farbtöne und traditioneller Materlalien erzeugt ein harmonisches Zusammensplel zwischen Büchern, Besucherinnen und Architektur. Es entsteht eine stimmige Atmosphäre, die gleichermaßen das Lernen und die Entspannung fördert. Ländliche Motive werden auch in der Fassade neu interpretiert, wodurch sich das Gebäude trotz Umnutzung und Neugestaltung harmonisch in das bestehende Ortsbild integrert. 
Die Schmökerei gliedert sich als eine Bereicherung für die lokale Gemeinschaft und die Touristen in den Ort ein. Sie verkörpert die Bedeutsamkeit von Wissen und Kultur in einer sich ständig verändernden Welt und bietet einen Ort der Begegnung und des Austauschs für alle.